
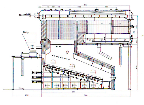
产品特性:
结构紧凑、占地面积小、锅炉房单层布置,基建投资省;
组装程度高,安装周期短,安装费用少;
受热面布置充分、合理,锅炉升温、升压快,出力足,热效率高;
炉排分风仓进风,各风量独立可调,炉排放无级调速,充分燃烧;
电控柜配备齐全的自动控制和检测仪表,自动化程度高,安全可靠,操作简便。
[NextPage]
SZW系列生物质热水锅炉
|
参数\数据\型号
|
SZW2.8-0.7/95/70-M |
SZW4.2-1/95/70-M |
SZW7-1/95/70-M |
SZW10.5-1/115/70-M |
SZW14-1/115/70-M |
|
|
额定热功率(MW)
|
2.8
|
4.2
|
7
|
10.5
|
14
|
|
|
额定工作压力Mpa
|
0.7/1.0
|
1
|
1
|
1.0/1.25
|
1.0/1.25
|
|
|
额定蒸汽温度℃
|
90/115
|
95/115
|
95/115
|
115/130
|
115/130
|
|
|
给水温度℃
|
70
|
70
|
70
|
70
|
70
|
|
|
受热面积
|
锅炉本体㎡
|
15/87
|
23/117
|
30/204
|
41/226
|
56/334
|
|
省煤器㎡
|
131
|
174
|
175
|
250
|
||
|
炉排有效面积㎡
|
4.4
|
6.6
|
10.6
|
16
|
20.8
|
|
|
水体水容积m3
|
5.3
|
7.8
|
12.8
|
15.3
|
21.6
|
|
|
锅炉效率%
|
>80
|
>81
|
>81
|
>81
|
>81
|
|
|
适用燃料
|
生物颗粒
|
|||||
|
燃烧耗量Kg/h
|
714
|
1058
|
1780
|
2670
|
3527
|
|
|
运输件尺寸m
|
7.2×2.6×3.5
|
7×2.7×3.5
|
8.0×3.4×3.5
|
9.8×3.4×3.5
|
11×3.4×3.5
|
|
|
运输件重量t
|
30
|
22
|
27
|
32
|
32
|
|
|
安装后外形尺寸M
|
8.2×2.6×5.6
|
9.1×3.6×7.2
|
11×4.0×7.8
|
12.5×4.8×8.8
|
14×4.8×9.8
|
|
|
引风机
|
型号
|
YX9-35 No8c右0°
|
GY6-1右0°
|
GY10-15右0°
|
Y5-47 12D右0°
|
Y5-47 12.4D右0°
|
|
流量(m3/h)
|
8868-19342
|
14000-20000
|
26321-32138
|
33318-50356
|
36762-55561
|
|
|
风压(pa)
|
2805-3041
|
3220-3060
|
3714-3802
|
3628-3393
|
387-3619
|
|
|
电动机功率
|
22
|
30
|
55
|
75
|
90
|
|
|
鼓风机
|
型号
|
T4-72 4.5A右225°
|
T4-72 5A右225°
|
GG10-1右225°
|
G4-73 9D右225°
|
G4-73 9D右225°
|
|
流量(m3/h)
|
5360-10288
|
7352-10249
|
10000-22500
|
23003-32079
|
23003-44128
|
|
|
风压(pa)
|
2582-1616
|
3195-2954
|
2690-1620
|
2668-2559
|
2668-1775
|
|
|
电动机功率(kw)
|
7.5
|
11
|
15
|
30
|
37
|
|
|
调速箱
|
型号
|
GL-5P
|
GL-10P
|
GL-16P
|
GL-20P/Ⅱ
|
GL-20P/Ⅱ
|
|
电动机功率(kw)
|
0.55
|
0.75
|
1.1
|
1.5
|
1.5
|
|
|
出渣机
|
型号
|
GXL-4
|
LXL-6
|
LXL-10
|
LXL-15
|
LXL-20
|
|
电动机功率(kw)
|
1.1
|
1.1
|
1.1
|
1.5
|
1.5
|
|
|
除尘器型号
|
XD-4
|
XD-6
|
XD10
|
XD-15
|
XD-20
|
|
[NextPage]
SZW系列生物质蒸汽锅炉
|
参数\数据\型号
|
SZW4-1.25-M |
SZW6-1.25-M |
SZW10-1.25-M |
SZW15-1.25-M |
SZW20-1.25-M |
|
|
额定热功率(MW)
|
4
|
6
|
10
|
15
|
20
|
|
|
额定工作压力Mpa
|
1.25/1.6/2.5
|
1.25/1.6/2.5
|
1.25/1.6/2.5
|
1.25/1.6/2.5
|
1.25/1.6/2.5
|
|
|
额定蒸汽温度℃
|
193/204/226
|
193/204/226
|
193/204/226
|
193/204/226
|
193/204/226
|
|
|
给水温度℃
|
20
|
60
|
60
|
105
|
105
|
|
|
受热面积
|
锅炉本体㎡
|
17/75
|
23/117
|
30/205
|
41/255
|
61/334
|
|
省煤器㎡
|
55
|
131
|
175
|
349
|
295/126(空预)
|
|
|
炉排有效面积㎡
|
4.9
|
6.6
|
10.6
|
16
|
21
|
|
|
水体水溶容积m3
|
5.5
|
7.3
|
12.8
|
15.3
|
21.6
|
|
|
锅炉效率%
|
>79
|
>80
|
>80
|
>80
|
>80
|
|
|
适用燃料
|
生物颗粒
|
|||||
|
燃烧耗量Kg/h
|
714
|
1058
|
1780
|
2670
|
3527
|
|
|
运输件尺寸m
|
7.2×2.6×3.5
|
7×2.6×3.5
|
8.0×3.4×3.5
|
9.8×3.4×3.5
|
11×3.4×3.5
|
|
|
运输件重量t
|
30
|
22
|
28
|
31
|
31
|
|
|
安装后外形尺寸M
|
7.2×2.6×5.6
|
9.1×3.8×7.2
|
11×4.0×7.8
|
12.5×4.8×8.8
|
12.4×4.8×7.8
|
|
|
引风机
|
型号
|
YX9-35 No8c右0°
|
GY6-1右0°
|
GY10-15右0°
|
Y5-47 12D右0°
|
Y5-47 12.4D右0°
|
|
流量(m3/h)
|
8868-19342
|
14000-20000
|
26321-32138
|
33318-50356
|
36762-55561
|
|
|
风压(pa)
|
2805-3041
|
3220-3060
|
3714-3802
|
3628-3393
|
387-3619
|
|
|
电动机功率
|
22
|
30/37(水膜除尘)
|
55
|
75
|
90
|
|
|
鼓风机
|
型号
|
T4-72 4.5A右225 °
|
T4-72 5A右225°
|
GG10-1右225°
|
G4-73 9D右225 °
|
G4-73 9D右225 °
|
|
流量(m3/h)
|
5360-10288
|
7352-10249
|
10000-22500
|
23003-32079
|
23003-44128
|
|
|
风压(pa)
|
2582-1616
|
3195-2954
|
2690-1620
|
2668-2559
|
2668-1775
|
|
|
电动机功率(kw)
|
7.5
|
11
|
15
|
30
|
37
|
|
|
给水泵
|
型号
|
DG6-25×7DG6-25×9DG6-25×12
|
DG6-25×7DG6-25×9DG6-25×12
|
DG12-25×7DG12-25×8DG12-25×12
|
DG25-30×6DG6-30×7DG252-30×10
|
DG25-30×6DG25-30×7DG25-30×10
|
|
流量(m3/h
|
3.75-7.5
|
3.75-7.5
|
7.5-15
|
15-30
|
15-30
|
|
|
扬程m
|
175/200/300
|
175/200/300
|
175/200/300
|
175/200/300
|
180/210/300
|
|
|
电动机功率(kw)
|
7.5/11/15
|
7.5/11/15
|
15/15/22
|
30/30/45
|
30/30/45
|
|
|
调速箱
|
型号
|
GL-5P
|
GL-10P
|
GL-16P
|
GL-20P/Ⅱ
|
GL-20P/Ⅱ
|
|
电动机功率(kw)
|
0.55
|
0.75
|
1.1
|
1.5
|
1.5
|
|
|
出渣机
|
型号
|
GXL-4
|
LXL-6
|
LXL-10
|
LXL-15
|
LXL-15
|
|
电动机功率(kw)
|
1.1
|
1.1
|
1.1
|
1.5
|
1.5
|
|
|
除尘器型号
|
XD-4
|
XD-6
|
XD10
|
XD-15
|
XD-15
|
|


