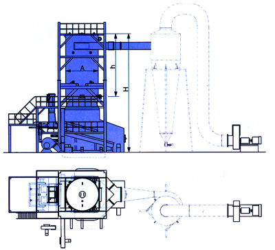
燃木柴往复炉排圆筒型燃木质废料有机热载体炉采用往复炉排,主要燃料为人造板行业生产过程中产生的废料,辅以砂光粉喷射燃烧。燃烧产生的洁净烟气也可以作为能源用于生产线,系统具有高效、节能、环保等优势。

|
型号/数据/参数
|
YWL-4600
(400) |
YWL-6000
(500) |
YWL-7000
(600) |
YWL-9400
(800) |
YWL-12000
(1000) |
YWL-14000
(1200) |
YWL-18000
(1500) |
||
|
额定热功率(KW)
|
4600
|
6000
|
7000
|
9400
|
12000
|
14000
|
18000
|
||
|
热效率(%)
|
75
|
75
|
75
|
75
|
75
|
75
|
75
|
||
|
设计压力(MPa)
|
1.1
|
1.1
|
1.1
|
1.1
|
1.1
|
1.1
|
1.1
|
||
|
介质工作温度(℃)
|
320
|
320
|
320
|
320
|
320
|
320
|
320
|
||
|
炉内熔油量(m3)
|
4.9
|
5.4
|
5.7
|
8.0
|
9.3
|
12.4
|
17
|
||
|
循环油量(m3/h)
|
260
|
300
|
340
|
520
|
600
|
680
|
800
|
||
|
配管连接口径(DN)
|
200
|
250
|
250
|
300
|
300
|
350
|
350
|
||
|
系统装机容量(KW)
|
140
|
175
|
215
|
270
|
315
|
380
|
410
|
||
|
外形
尺寸
|
H
|
mm
|
10500
|
11620
|
12650
|
13100
|
13750
|
14720
|
双辐射+对流分体式
|
|
h
|
5500
|
6500
|
7450
|
7820
|
8510
|
9540
|
|||
|
A
|
3100
|
3200
|
3220
|
3400
|
3500
|
3500
|
|||
|
设备总重(kg)
|
67300
|
78800
|
84800
|
97600
|
112700
|
118300
|
136000
|
||
| 注:以上数据仅供参考,如有变动,以正式图纸为准。 | |||||||||


